2009_Platzgestaltung Dalles_Architekt Stefan Ludwig 

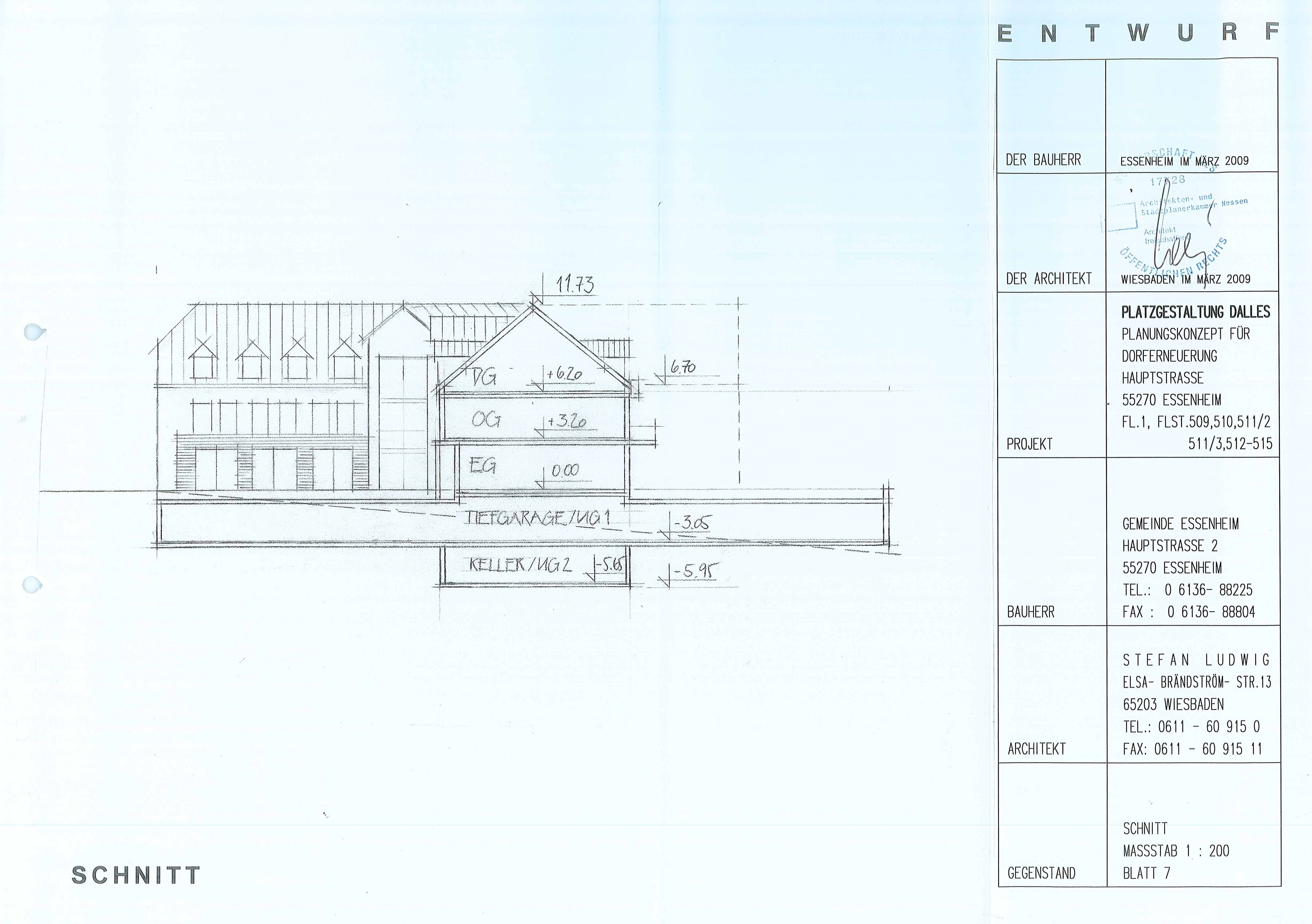
Eine frühe Planungsstudie des Wiesbadener Architekten Stefan Ludwig sah die Ausbildung einer Tiefgarage unter dem gesamten L-Baukörper vor. Über dem Gewerbeteil im EG, mit zwei Gastronomie-Einheiten, sollten in zwei Geschossen 12 Wohneinheiten entstehen. Eine Begrünung der Platzfläche war nicht Teil der Planung, in die heutige Sichtachse ins Tal stellte sich der massive Baukörper. 

 

Wir nutzen Cookies auf unserer Website. Einige von ihnen sind essenziell für den Betrieb der Seite, während andere uns helfen, diese Website und die Nutzererfahrung zu verbessern (Tracking Cookies). Sie können selbst entscheiden, ob Sie die Cookies zulassen möchten. Bitte beachten Sie, dass bei einer Ablehnung womöglich nicht mehr alle Funktionalitäten der Seite zur Verfügung stehen.